$529,900
No one does a tri-level like the Pacific NW, and this home is no exception. The playful separation of spaces, the way this home maximizes natural light in so many places, and no long, narrow flights of stairs means just a hop and a skip up or down for tri-level fun! You'll find three bedrooms and a bath upstairs, plus an office, family room and second bath downstairs. The main level highlights a chic living room with big windows and hardwood floors anchored by a cozy wood-burning fireplace. The svelte kitchen features laminate floors, recently replaced appliances, playful period details, and adds opportunity for easy entertaining expansion. The lower level is perfect for modern living, with a separate family room and a dedicated home office, providing peace and separation for remote work or study. This turnkey property combines convenience, comfort, and significant owner-occupancy or investment opportunity. Truly a rare find and a must-see listing!
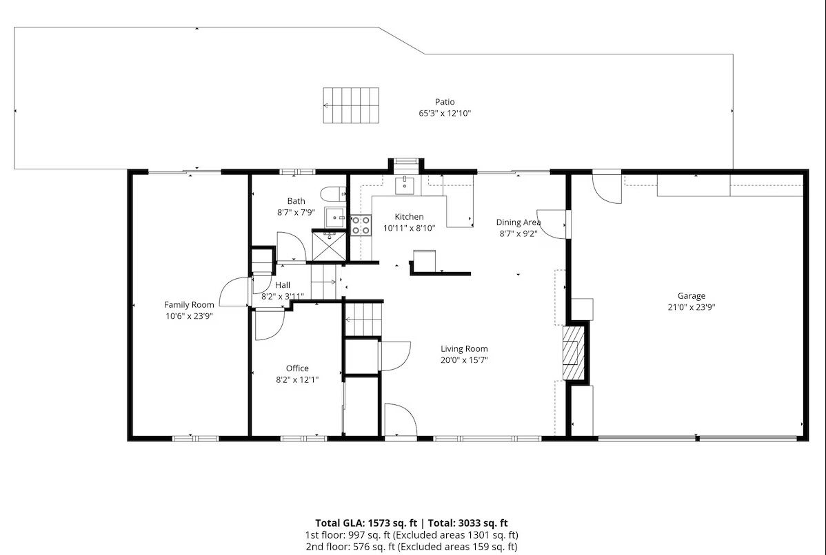
FLOOR PLANS

Features
Bedrooms
3
Bathrooms
2
Square Ft.
1556
Garages
Garage Spaces: 2, Garage Type: Attached
Acres
0.18
Property Type
SingleFamilyResidence
Full Baths
2
Year Built
1967
Basement
Basement: None
Cooling
Cooling: CentralAir
Fireplaces
Fireplace Features: WoodBurning, Fireplaces Total: 1
Heating
Heating: ForcedAir
Parking
Features: Driveway, 2 total parking spots
Roof
Roof: Composition
Utilities
Fuel Description: Gas, Hot Water Description: Gas, Water Source: PublicWater
Mortgage Calculator
Monthly Payment
$0
Perfect home finder
'VIP' Listing Search
Whenever a listing hits the market that matches your criteria you will be immediately notified.
Erika George and Kari McGee

Please Select Date
Please Select Type
Similar Listings
Confirm your time
Fill in your details and we will contact you to confirm a time.
Contact Form
Welcome to our open house!
We encourage you to take a few seconds to fill out your information so we can send you exclusive updates for this listing!






































